Lokacija: Otok Ist
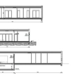
Planirano je građenje prizemnog objekta u mješovitoj izvedbi betonske i zidane konstrukcije. Podzemni dio konstrukcije čine vodosprema i strojarnica u monolitnoj armirano – betonskoj izvedbi dok je stambena etaža prizemlja zidana konstrukcija s AB elementima (serklaži) te polumontažnom konstrukcijom bijelog stropa.
Glavni projektant:
Nikica Tabain, d.i.a. (GRADIT d.o.o)




